トップページ >> 床ハッチ・フロアーハッチ >> [ダイケン] 床ハッチ(ガススプリング仕様) >> HXJ615B ブロンズ
床ハッチ・フロアーハッチ
[ダイケン] 床ハッチ(ガススプリング仕様)
[ダイケン] 床ハッチ(ガススプリング仕様) HXJ615B ブロンズ
- 気密タイプ
- 在来工法用
- ■特長
地下室の出入口に最適な大型の床点検口です。
気密タイプのため床下からの冷気を抑える効果があります。
ガススプリングで蓋が開放状態で支持され、地下収納庫の入口に最適です。
床面との段差
わずか2mmのバリアフリー対応
適用荷重:屋内歩行程度
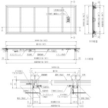
- [ダイケン]気密型床ハッチ
- 床面切抜寸法(W4) :601x1501mm
- 有効開口寸法(W1) :541x1441mm
外枠外寸法(W2) :619x1519mm
蓋寸法(W3) :582.6x1480.8mm
取手用穴あけ寸法:65×105o
12oのフロア材用(9o下地材付)
付属部品(ねじは除く)
蓋下地材x1、化粧六角レンチx2、ガススプリングx2、同取付金具A・Bx各2、平座金x8、Eリングx4、安全棒付金具x1、安全棒受け(外枠用・内枠用)x各1、気密材x1、取手化粧枠x1、取手x1、蓋補強材x4、内蓋押え金具x14
| 製品番号 | 26-262-41 |
|---|---|
| 単価 (税別) | 1台 88,800円 |
| 単価 (税込) | 1台 97,680円 |
型番一覧
![[ダイケン] 床ハッチ(ガススプリング仕様) [ダイケン] 床ハッチ(ガススプリング仕様)](../merchandise/s003001_m.jpg)


