ハウジングショッパーズ北条

 製品番号 

パソコン版はこちら

避難ハッチ/はしご

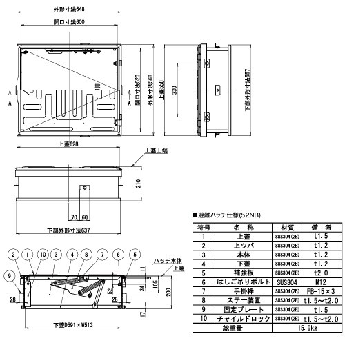
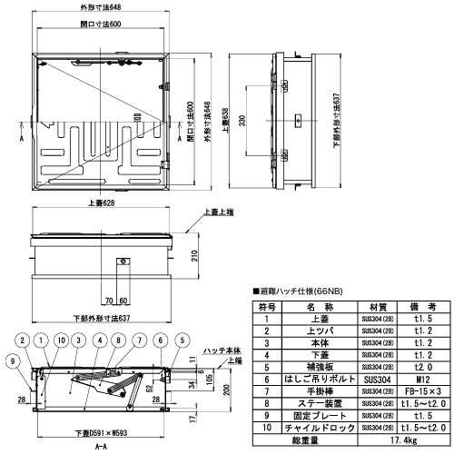
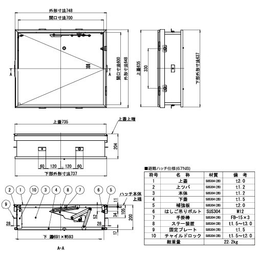
[ORIRO] 避難ハッチ

3

商品中

1-3

商品
前へ

1

次へ

商品カテゴリー から選ぶ

現場備品・消耗品現場備品・消耗品

基礎まわり基礎まわり

躯体接合金物躯体接合金物

座金・ボルト・ナット座金・ボルト・ナット

釘・ビス・ステープル釘・ビス・ステープル

現場備品・消耗品換気・点検口

現場備品・消耗品接着・補修材

現場備品・消耗品内装用資材

現場備品・消耗品ドア・建具・家具用金物

内装建具・建材内装建具・建材

外装・外構用金物外装・外構用金物

現場備品・消耗品積層集成材(フリー板)

現場備品・消耗品ロフト収納はしご

オンラインショップTOP

▲ページの先頭へ戻る